Проект Надежда
|
Общая площадь: |
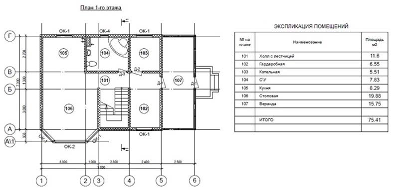
Первый этаж - смотреть планировку
|
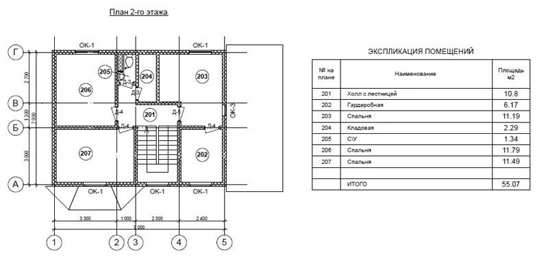
Второй этаж - смотреть планировку
|
![]() |
![]() |
![]() |
![]() |
![]() |
![]() |
![]() |
![]() |
![]() |
![]() |
![]() |
![]() |
![]() |
||
Дома из СМЛ-панелей Neo Быстро Солидно Капитально
8 800 100 09 16
|
Общая площадь: |
Первый этаж - смотреть планировку
|
Второй этаж - смотреть планировку
|
![]() |
![]() |
![]() |
![]() |
![]() |
![]() |
![]() |
![]() |
![]() |
![]() |
![]() |
![]() |
![]() |
||

СМЛ-панели Neo позволяют быстро и качественно построить
не только коттеджи, но и современные, тёплые многоквартирные дома.
Действия:
Смотрите ролик с 18:43. В передаче к Дню пожарной охраны в проекте: "Жизнь в большом городе": Кто оберегает столицу от огня.
Смотрите новости о СМЛ-домах Neo: интерес гостей на инновационном форуме.
Смотрите видео со стройплощадки дома с цокольным этажом.
|
Устали выбирать технологию строительства? |
Выбор при строительстве. |
|
Выбираете готовый дом? |
Выбор готового дома. |
|
Системы УМНЫЙ ДОМ |
|
Выступление в Общественной |
понедельник-пятница: 9.00-21.00
суббота и воскресенье: 9.30-21.30
Просим согласовывать время встречи по телефону: 8 800 100 09 16
Можно включиться в работу прямо сейчас. Это ускорит процесс и позволит зарезервировать очерёдность производства.
Переход на страницу быстрого начала работы
Действия:
Москва и МО
Санкт-Петербург (завод)
Обнинск (завод)
Архангельск
Брянск
Владимир
Вологда
Иваново
Калуга
Карелия
Кострома
Липецк
Нижний Новгород
Новгород
Псков
Рязань
Смоленск
Тула
Тверь
Ярославль
Завод в Тюмени:
Работает на регионы:
Пермский Край
Башкортостан
Оренбургская область
Челябинская область
Курганская область
Свердловская область
Омская область
Тюменская область
Северный Казахстан